
options, dimensions, path of the sun

infrastructure of area 1 should leave options to connect area 2 - second entrance street possible

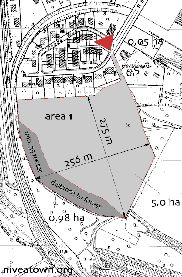
6 hektar = 256 x 275 m - 1 hektar has to be without buildings to keep distance to forest

copy of german kataster plan without any edits - basic land register plan

kataster with layers for existing vegetation, structure of niveatown and path of the sun